St Peters Street, Carmarthen
Property Features
- Well-presented Grade II listed four storey building
- Retaining many original character features throughout
- Convenient location on edge of Carmarthen town centre
- Enclosed rear courtyard with gated access onto adjoining Local Authority carpark
- £18.000 Per Annum
Property Summary
A well-presented conveniently situated Grade II Listed 4-storey end of terrace building extending to approx. 3,000 sq. ft. benefiting from direct pedestrian access to adjacent large surface car-park in Carmarthen town centre.
Full Details
Overview
Ty Carwyn was previously occupied by a number of local and administrative occupiers, to include Carmarthenshire Association of Voluntary Services and in the 1970’s, the property was known as ‘Jeremy’s Commercial Hotel’. Most recently, the property benefits from granted planning consent for the conversion to a residential dwelling from office accommodation.
The building comprises the principle 4-storey building, along with a two-storey rear extension, in addition to an enclosed courtyard area and has undergone extensive works on the fabric of the building. The works include new render and painting, repairing and replacing timber windows and doors and replacing timber fascia boarding.
Location
Carmarthen is the county town of Carmarthenshire and the administrative centre for the county and West Wales. Ty Carwyn fronts directly onto St. Peter’s Street, at the start of King Street, a busy one-way street through the traditional part of Carmarthen town centre, just off the A484 thoroughfare.
The property adjoins Carmarthen Library and St. Peter’s surface car-park, with over 460 spaces for both short stay and long stay. Occupiers along King Street and surrounding includes independent stores, eateries, galleries, chain retailers and professional services, to include Co-Op Food, Lloyds Bank and Lyric Theatre. Other notable retailers nearby include Marks & Spencer, Boots, Days Department Store and Cafe Nero to name a few.
Accommodation
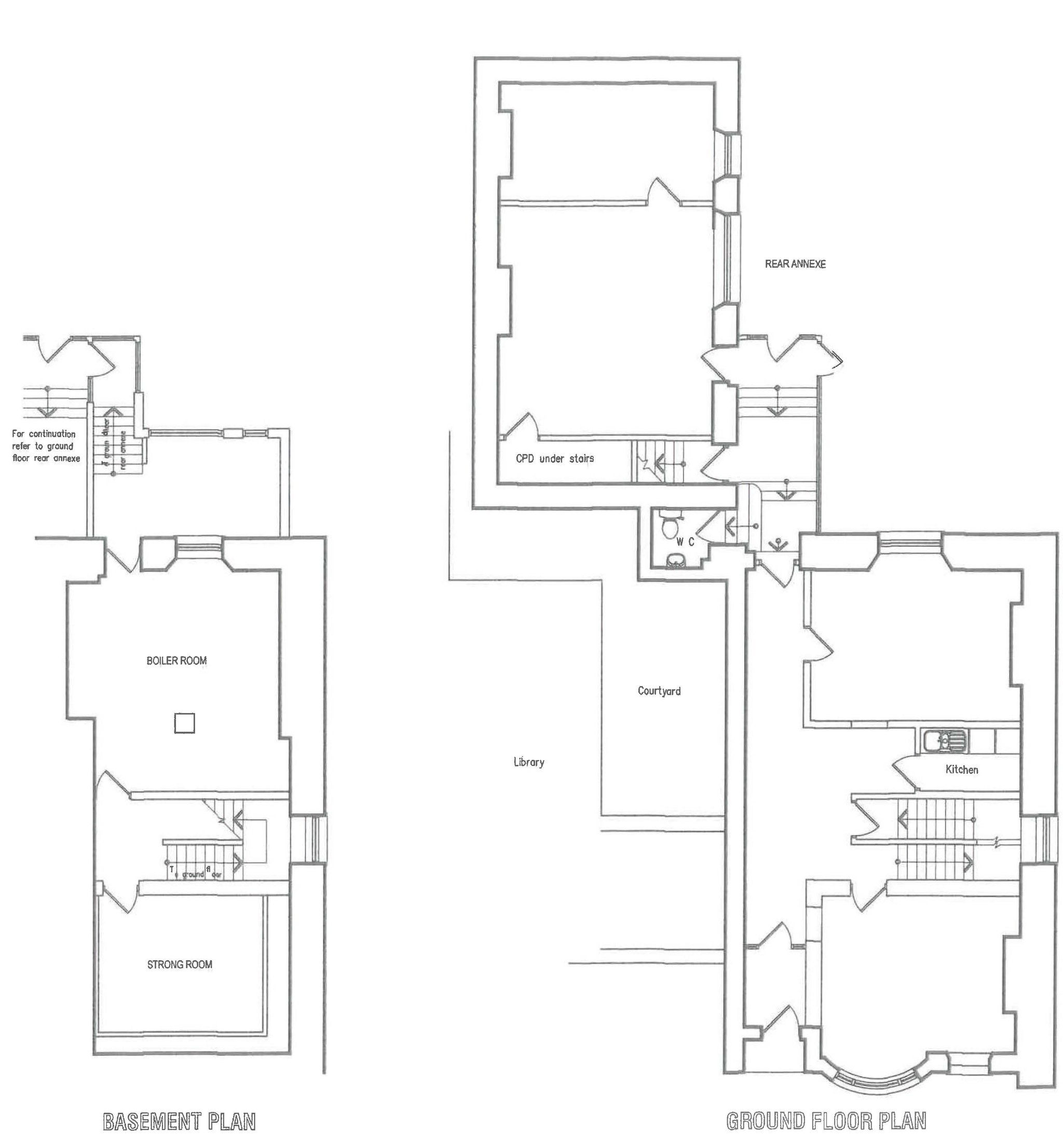
The property is accessed directly off St. Peter's Street to the front, with the front door leading into an entrance hall, with two reception rooms and toilet facilities. Steps lead down to a rear hall with doors to the rear courtyard, two further rooms and stairs to the basement level with boiler and strong room. A staircase leads to the first floor with eight rooms and a cloakroom, with a further three rooms on the second floor.
The property have been tastefully decorated in part, with only flooring required before occupation, whilst other parts of the property require greater updating works.
Externally, there is a small paved garden to the front facing onto St. Peter’s Street, as well as a rear tarmacadam courtyard area with direct pedestrian access onto adjacent St. Peter’s surface car-park, with over 460 spaces for both short and long stay.
Further Information
Services
We understand that the property benefits from mains electricity, water, gas and drainage. Sophisticated alarm system at the property.
Council Tax
To be assessed.
Energy Performance Certificate
Not applicable.
Local Authority
Carmarthenshire County Council
County Hall, Castle Hill, Carmarthen SA31 1JP.
Tel: 01267 234567
Viewing
Strictly by appointment with the selling agents. For further information please contact Rees Richards & Partners Carmarthen office - 12 Spilman Street, Carmarthen SA31 1LQ.
Tel: 01267 612021
Email: property@reesrichards.co.uk























































